Công tơ điện tử 3 pha trực tiếp EMIC ME-43

Các thông số chính Công tơ điện tử 3 pha trực tiếp EMIC ME-43
- Công tơ điện tử 3 pha 4 dây trực tiếp
- Điện áp danh định pha : 3x230/400V
- Tần số danh định : 50Hz
- Dòng điện định mức : 5A
- Dòng điện quá tải : 100A
- Hiển thị các thông số: kWh
- Tải khởi động : 0.004In
- Cảnh báo ngược chiều công suất, mất pha, sai thứ tự pha, pin yếu
- Hằng số công tơ : 1000xung/kWh
- Cấp chính xác : Hữu công CIass 1
- Số biểu giá : 1
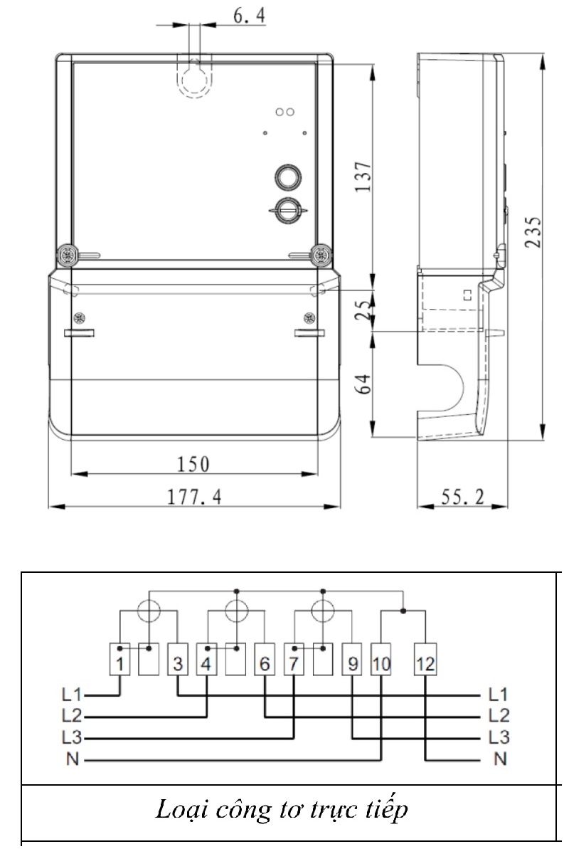
- Sơ đồ đấu dây và kích thước











